Гранитная ограда для памятника:
преимущества, монтаж и реализация проекта
Д109
Благоустройство мест захоронения — важный аспект сохранения памяти о близких. При выборе материалов для мемориальных конструкций заказчики всё чаще отдают предпочтение граниту. Этот материал обеспечивает долговечность и минимальные затраты на обслуживание.
Традиционные материалы имеют существенные недостатки. Бетон требует регулярной покраски и склонен к растрескиванию. Дерево быстро теряет вид под воздействием влаги и солнца. Гранит лишён этих минусов и сохраняет первоначальный облик десятилетиями.
Настоящая статья рассматривает преимущества гранитных оград на примере проекта Д109. В рамках проекта выполнены: изготовление повторного памятника, покраска бетонного цоколя и установка гранитных элементов ограждения. Статья содержит технические данные, фотоматериалы и чертёж конструкции.
Традиционные материалы имеют существенные недостатки. Бетон требует регулярной покраски и склонен к растрескиванию. Дерево быстро теряет вид под воздействием влаги и солнца. Гранит лишён этих минусов и сохраняет первоначальный облик десятилетиями.
Настоящая статья рассматривает преимущества гранитных оград на примере проекта Д109. В рамках проекта выполнены: изготовление повторного памятника, покраска бетонного цоколя и установка гранитных элементов ограждения. Статья содержит технические данные, фотоматериалы и чертёж конструкции.
Преимущества единого мемориального комплекса
При выборе материала для мемориального ограждения гранит имеет ключевые преимущества перед бетоном, металлом и деревом.
Долговечность и устойчивость к атмосферным воздействиям
Эстетическая привлекательность
Практичность: минимальный уход
Проект Д109: техническое задание и анализ объекта
Проект Д109 представляет собой комплекс работ по благоустройству семейного мемориального участка. Задача включала изготовление повторного памятника, покраску существующего бетонного цоколя и установку гранитных балок с кубиками.
Исходные данные и требования заказчика
Техническое задание от заказчика содержало следующие требования:
Изготовление повторного памятника.
Требовалось создать копию существующего надгробия. Памятники стоят
рядом, поэтому гравировка должна быть одного размера и на одной и той же
высоте — это обеспечивает визуальную целостность мемориальной группы.
Требовалось создать копию существующего надгробия. Памятники стоят
рядом, поэтому гравировка должна быть одного размера и на одной и той же
высоте — это обеспечивает визуальную целостность мемориальной группы.
Покраска существующего бетонного цоколя.
Бетонное основание под памятниками требует восстановления: зачистка, выравнивание и нанесение атмосферостойкой краски.
Бетонное основание под памятниками требует восстановления: зачистка, выравнивание и нанесение атмосферостойкой краски.
Установка гранитных балок и кубиков.
После покраски цоколя необходимо смонтировать гранитные элементы ограждения.
После покраски цоколя необходимо смонтировать гранитные элементы ограждения.
Заказчик отметил ключевое преимущество гранитной ограды: за ней не нужен уход, не надо красить. Полированная поверхность гранита является отличной защитой от осадков и не боится ультрафиолетовых лучей.
Чертёж и размеры конструкции
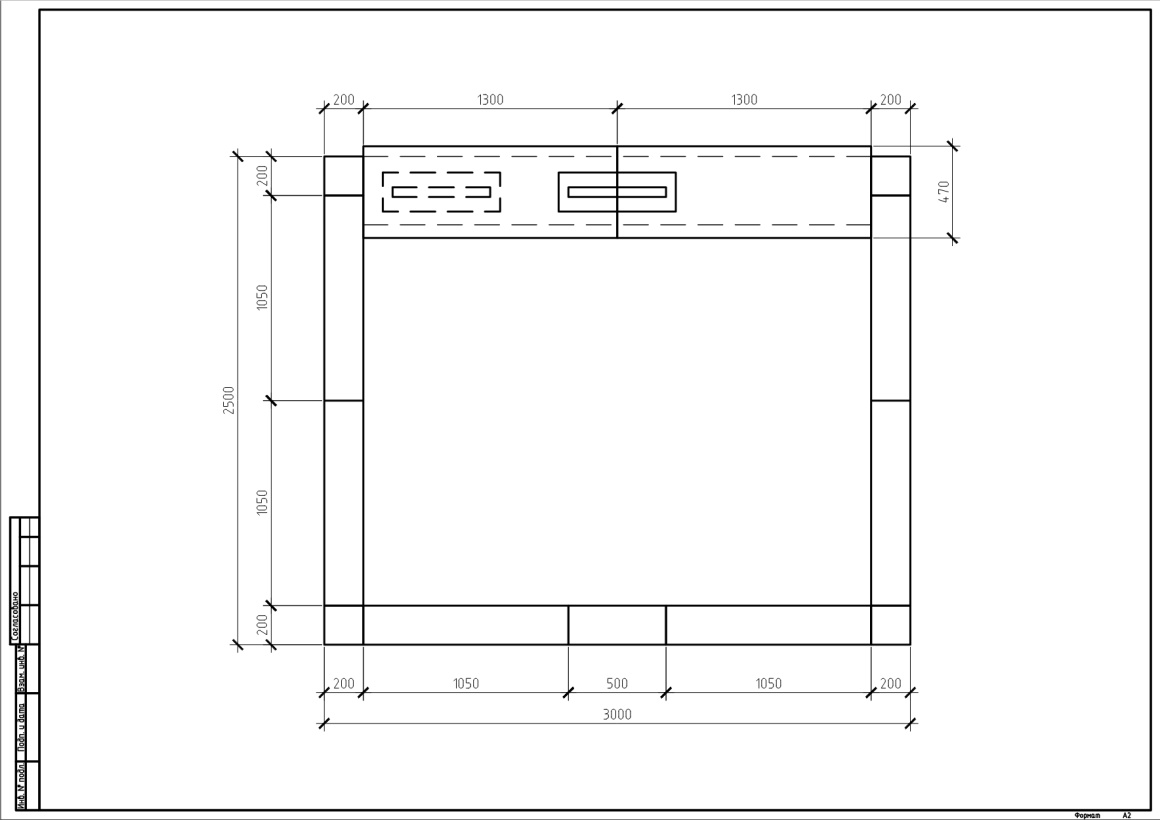
На основании обследования был разработан рабочий чертёж конструкции гранитной ограды (вид сверху).
Габариты:
Общая ширина: 3000 мм
Общая высота: 2500 мм
Схема секций: Левая секция: 1050 мм
Центральная секция: 500 мм
Правая секция: 1050 мм
Конструкция симметрична, что упрощает изготовление и монтаж элементов.
Габариты:
Общая ширина: 3000 мм
Общая высота: 2500 мм
Схема секций: Левая секция: 1050 мм
Центральная секция: 500 мм
Правая секция: 1050 мм
Конструкция симметрична, что упрощает изготовление и монтаж элементов.
Технология монтажа гранитной ограды и элементов памятника
Монтаж гранитной ограды в рамках проекта Д109 выполнялся в три этапа: подготовка бетонного цоколя, установка гранитных элементов и выравнивание гравировки по высоте.
Подготовка бетонного цоколя: покраска и выравнивание
Установка гранитных балок и кубиков
Гравировка и выравнивание по высоте
Выполненные работы: итог
Изготовление повторного памятника
Покраска бетонного цоколя
Установка гранитных балок
Установка угловых кубиков
Гравировка на единой высоте
Заключение: почему гранитная ограда — оптимальное решение
Проект Д109 успешно завершён. Выполнены все работы по техническому заданию: изготовлен повторный памятник, покрашен бетонный цоколь, установлены гранитные балки и кубики. Гравировка на всех памятниках выполнена в едином размере и на одной высоте, что обеспечивает визуальную целостность мемориальной группы.
Итоги проекта
Результаты реализации проекта подтверждают преимущества гранитной ограды:
1. Долговечность. Гранитная ограда прослужит более 100 лет без потери внешнего вида. Полированная поверхность устойчива к осадкам и ультрафиолету.
2. Минимальный уход. За оградой не нужно ухаживать, не требуется покраска. Это снижает затраты времени и средств для родственников.
3. Эстетика. Гранитные элементы гармонично сочетаются с памятниками, создавая целостный мемориальный ансамбль.
4. Технологичность. Монтаж гранитных балок и кубиков выполнен в короткие сроки с соблюдением всех размеров по чертежу.
Рекомендации
При планировании благоустройства мемориального участка рекомендуется:
Выбирать гранит для оград и памятников как наиболее долговечный материал
Разрабатывать чертёж конструкции до начала работ
Обеспечивать единую высоту гравировки для соседних памятников
Сочетать гранитные элементы с существующими конструкциями (покраска цоколя в тон)
Гранитная ограда — это инвестиция в долговечность и достойный вид мемориального комплекса на долгие годы.
Итоги проекта
Результаты реализации проекта подтверждают преимущества гранитной ограды:
1. Долговечность. Гранитная ограда прослужит более 100 лет без потери внешнего вида. Полированная поверхность устойчива к осадкам и ультрафиолету.
2. Минимальный уход. За оградой не нужно ухаживать, не требуется покраска. Это снижает затраты времени и средств для родственников.
3. Эстетика. Гранитные элементы гармонично сочетаются с памятниками, создавая целостный мемориальный ансамбль.
4. Технологичность. Монтаж гранитных балок и кубиков выполнен в короткие сроки с соблюдением всех размеров по чертежу.
Рекомендации
При планировании благоустройства мемориального участка рекомендуется:
Выбирать гранит для оград и памятников как наиболее долговечный материал
Разрабатывать чертёж конструкции до начала работ
Обеспечивать единую высоту гравировки для соседних памятников
Сочетать гранитные элементы с существующими конструкциями (покраска цоколя в тон)
Гранитная ограда — это инвестиция в долговечность и достойный вид мемориального комплекса на долгие годы.