Комбинированный памятник: двухцветный гранит и ограда из нержавеющей стали
Д45
Проект Д45 — это реализация особой индивидуальной концепции, с которой к нам пришел заказчик: инженер на пенсии. Он разработал собственный подробный план раскладки, в основе которого лежала идея объединить природную монументальность долговечного гранита и современную эстетику нержавеющей стали. Мы согласовали работу в три этапа и с уважением воплотили его инженерную задумку в реальность.
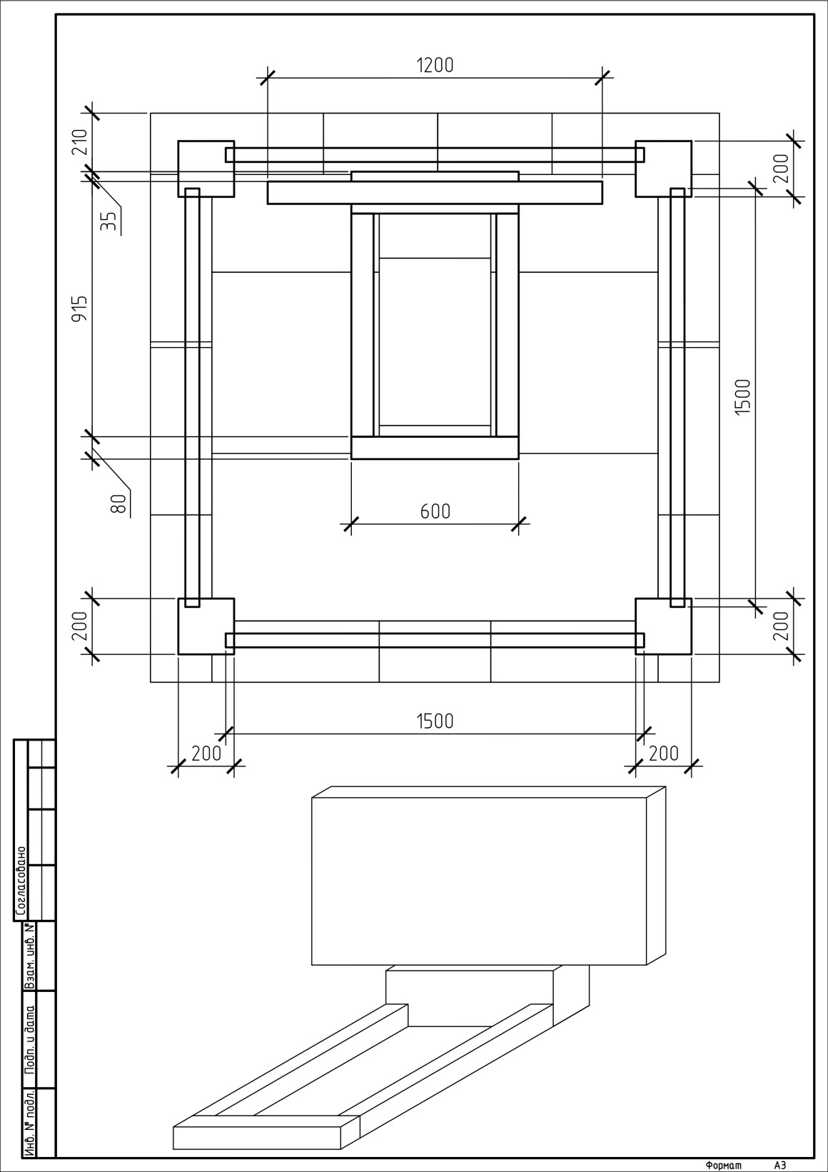
Ниже — план раскладки, который сделали мы по ТЗ заказчика:
Ниже — план раскладки, который сделали мы по ТЗ заказчика:
Этап 1. Устройство монолитной железобетонной плиты
Первый этап — заливка монолитной железобетонной плиты — был выполнен нами. Плита стала надежным фундаментом всего будущего комплекса. Её особенность — специально предусмотренное технологическое отверстие под будущее захоронение урн. Качественное бетонное основание — залог долговечности: именно оно принимает на себя нагрузку от массивных гранитных элементов.
Этап 2. Облицовка плиты двухцветным гранитом
Железобетонная плита была облицована натуральным гранитом двух разных цветов. Каждое месторождение камня дает свой неповторимый оттенок и текстуру — и именно комбинация этих фактур создает выразительный, запоминающийся облик комплекса.
Для центральной площадки использовался Санарский гранит с зернистой структурой, а для периметра и цоколя — насыщенный полированный Габбро - диабаз. Такое сочетание визуально зонирует пространство и придает мемориалу строгую элегантность.
Для центральной площадки использовался Санарский гранит с зернистой структурой, а для периметра и цоколя — насыщенный полированный Габбро - диабаз. Такое сочетание визуально зонирует пространство и придает мемориалу строгую элегантность.
Этап 3. Установка памятника и ограды
На завершающем этапе была реализована главная дизайнерская задумка заказчика — интеграция элементов из нержавеющей стали в гранитный комплекс.
Состав работ:
Состав работ:
- Монтаж гранитных полированных столбиков по периметру.
- Установка горизонтальных рейлингов из нержавеющей стали между столбиками, образующих ограду.
- Монтаж горизонтальной мемориальной стелы с гравировкой, посвященной семье.
Нержавеющая сталь — идеальный партнер для натурального камня: она не боится влаги, перепадов температур и не требует покраски. Это долговечное и практически не требующее ухода решение.
Готовый мемориальный комплекс
В результате получился строгий, долговечный и эстетичный памятник, точно соответствующий изначальной инженерной задумке. Уникальное сочетание неполированного светлого и полированного темного камня гармонично подчеркнуто строгим хромированным блеском нержавеющей стали. Уход за таким мемориальным комплексом минимальный, и не требует много усилий. Нет ржавеющих деталей, требующих очистки и покраски.
Почему выбирают комбинацию гранита и нержавеющей стали
Долговечность гранита
Коррозионная стойкость метала
Уникальность фактур