Резной памятник из чёрного габбро с полным
благоустройством участка
Д30
Когда приходит время обновить место захоронения, задача нередко выходит за рамки простой замены памятника. Требуется убрать старую ограду, поднять уровень территории, устроить новое основание, вымостить площадку и подобрать памятник, который будет выглядеть достойно на протяжении многих десятилетий.
Именно такой объём работ мы выполнили в проекте Д30. Гранитный мемориальный комплекс размером 200 × 200 см стал результатом полного обновления участка. Основа ансамбля — резной памятник из чёрного габбро-диабаза, выполненный в технике "корка": лицевая сторона зеркально отполирована, а задняя часть оставлена в виде дикого камня с природным рельефом. В этой статье — подробный разбор проекта с фотографиями и описанием всех этапов.
Именно такой объём работ мы выполнили в проекте Д30. Гранитный мемориальный комплекс размером 200 × 200 см стал результатом полного обновления участка. Основа ансамбля — резной памятник из чёрного габбро-диабаза, выполненный в технике "корка": лицевая сторона зеркально отполирована, а задняя часть оставлена в виде дикого камня с природным рельефом. В этой статье — подробный разбор проекта с фотографиями и описанием всех этапов.
Участок до начала работ
На момент начала проекта участок требовал полного обновления. Расположение у дороги привело к повреждению металлической ограды — часть секций была деформирована. Существующий памятник из красного гранита не обновлялся много лет. Мощение и благоустройство отсутствовали.
Помимо замены памятника и ограды, заказчик хотел поднять уровень участка. Это было реализовано с помощью бетонного цоколя, облицованного гранитом, — решение одновременно формирует нужную высоту и создаёт прочное эстетичное основание.
Помимо замены памятника и ограды, заказчик хотел поднять уровень участка. Это было реализовано с помощью бетонного цоколя, облицованного гранитом, — решение одновременно формирует нужную высоту и создаёт прочное эстетичное основание.
Шаг 1. Обсуждение пожеланий и техническое задание
Всё начинается с разговора заказчика с менеджером. Обсуждаются пожелания к памятнику: материал, форма, декоративные элементы, размеры участка, бюджет. По итогам разговора менеджер формирует техническое задание — документ, в котором зафиксированы все требования к будущему комплексу.
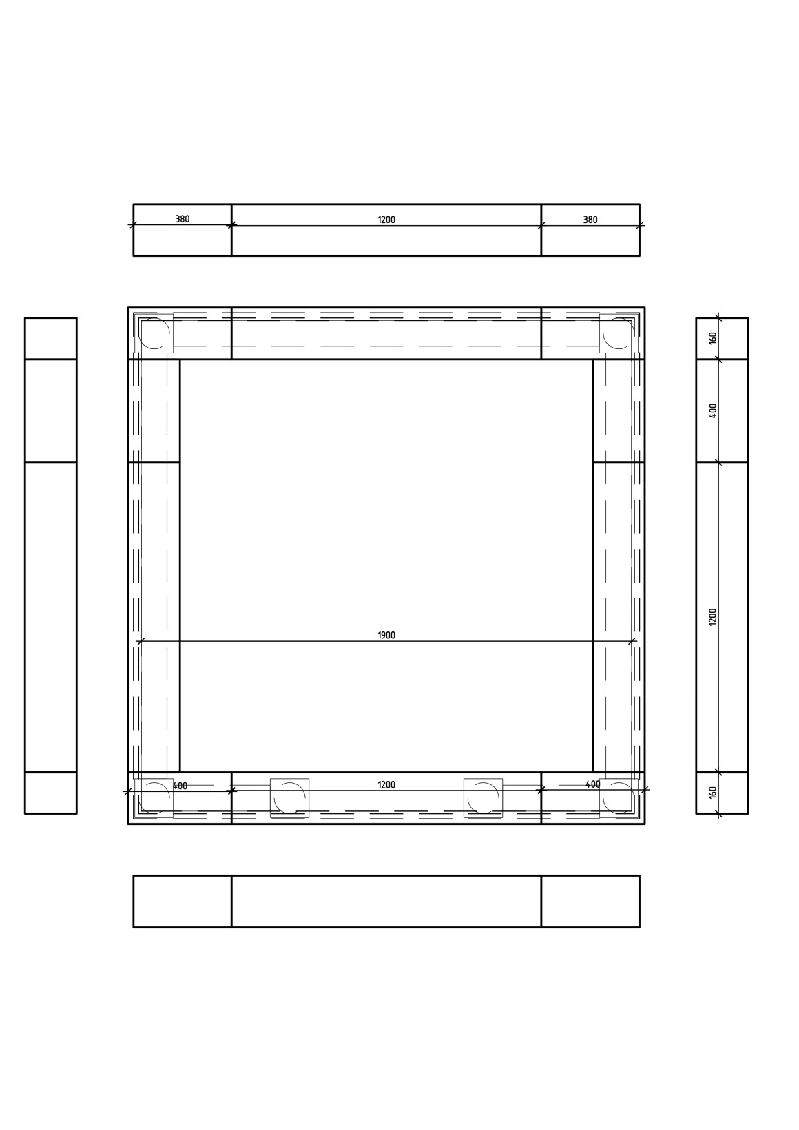
Ниже — общий план проекта Д30, составленный на этапе технического задания. На нём зафиксированы размеры участка (2000 × 2000 мм), расположение столбиков, высота цоколя и габариты памятника.
Ниже — общий план проекта Д30, составленный на этапе технического задания. На нём зафиксированы размеры участка (2000 × 2000 мм), расположение столбиков, высота цоколя и габариты памятника.
Шаг 2. Проектирование и уточняющие чертежи
Техническое задание передаётся проектировщику. Он разрабатывает детальные чертежи: планы, разрезы (виды), раскладку камня. На этом этапе могут быть выявлены несостыковки размеров или конструктивные ограничения — всё это гораздо проще исправить на бумаге, чем после начала производства.
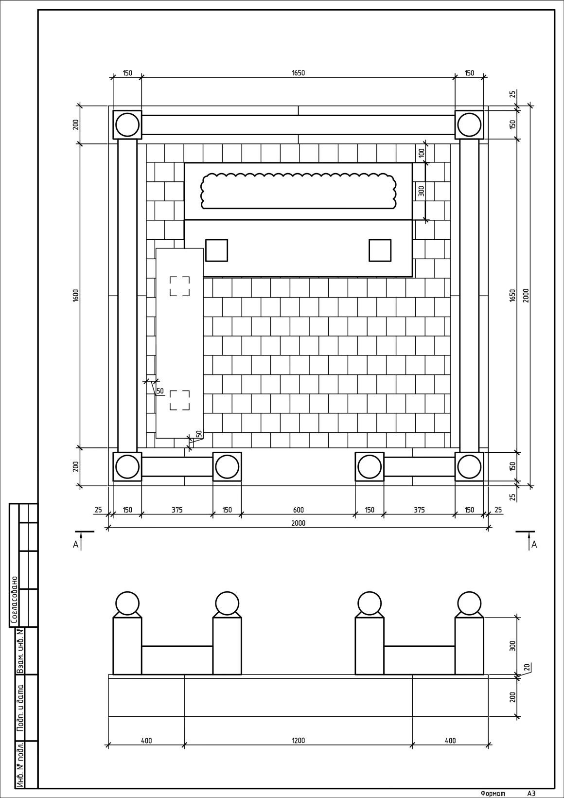
Ниже — уточняющие чертежи проекта Д30: детализированная модель памятника и
Ниже — уточняющие чертежи проекта Д30: детализированная модель памятника и
Шаг 3. 3D-модель: заказчик видит комплекс до изготовления
На основе согласованных чертежей создаётся интерактивная 3D-модель. Заказчик может рассмотреть будущий комплекс с любой стороны, оценить пропорции, убедиться в правильности выбранных решений — и только после этого даёт добро на запуск производства.
Именно на этом этапе проще всего внести правки: поменять высоту цоколя, угол постамента, форму ограды. После согласования 3D-модели проект считается финальным.
Именно на этом этапе проще всего внести правки: поменять высоту цоколя, угол постамента, форму ограды. После согласования 3D-модели проект считается финальным.
Для детального ознакомления с проектом мы предоставляем интерактивную 3D-модель мемориального комплекса. Вы можете вращать модель, приближать отдельные элементы и рассматривать конструкцию со всех сторон. Это современный подход к презентации мемориальной продукции, который позволяет получить полное представление о будущем памятнике ещё до начала работ.
(если не работает 3D анимация здесь, попробуйте по ссылке)
(если не работает 3D анимация здесь, попробуйте по ссылке)
Шаг 4. Заказ материалов и монтаж
После согласования 3D-модели по финальным чертежам заказываются материалы. Изготовление и монтаж выполняются строго в соответствии с проектной документацией. Такой подход исключает неожиданности: реальный объект точно соответствует тому, что заказчик одобрил на экране.
Состав работ по проекту Д30:
Состав работ по проекту Д30:
- Демонтаж металлической ограды и существующего памятника.
- Расчистка и подготовка территории.
- Устройство бетонного цоколя, облицованного гранитом (поднятие уровня участка).
- Установка декоративных угловых столбиков с полированными гранитными шарами.
- Мощение пилено-колотой гранитной брусчаткой 100 × 100 × 50 мм.
- Изготовление и установка резного памятника из чёрного габбро-диабаза в технике «корка».
- Нанесение портретной гравировки, православного креста и надписей
Почему резной памятник
из габбро - диабаза
один из лучших выборов
из габбро - диабаза
один из лучших выборов
Долговечность материала
Глубина и контрастность гравировки
Техника "корка" — природная выразительность камня
Минимальный уход
Этапы работ: от демонтажа до готового мемориального
комплекса
Демонтаж и подготовка территории
На первом этапе были демонтированы повреждённая металлическая ограда и существующий памятник. Поскольку участок расположен у дороги, ограда получила механические повреждения — часть секций была деформирована и покосилась. Территория расчищена от растительности, выровнена и подготовлена под устройство нового основания.
Устройство цоколя и поднятие участка
Одной из ключевых задач было поднять уровень участка. Для этого устроен бетонный цоколь, облицованный гранитом, — такое решение позволяет одновременно поднять площадку на нужную высоту, сформировать прочное основание и получить эстетичный внешний вид. Бетон со всех сторон закрыт полированным гранитом, что защищает конструкцию от влаги и морозов.
В четырёх углах цоколя установлены декоративные столбики из гранита, увенчанные полированными шарами. Они визуально завершают контур комплекса и придают ансамблю торжественный вид.
В четырёх углах цоколя установлены декоративные столбики из гранита, увенчанные полированными шарами. Они визуально завершают контур комплекса и придают ансамблю торжественный вид.
Мощение пилено-колотой гранитной брусчаткой
Внутренняя площадь участка вымощена пилено-колотой гранитной брусчаткой размером 100 × 100 × 50 мм. Такая брусчатка отличается особой фактурой: боковые грани имеют естественный скол, а верхняя и нижняя — пилёное основание. Это обеспечивает надёжную фиксацию при укладке и характерный «старинный» рисунок поверхности, который гармонично сочетается с необработанным скальным краем памятника.
Установка резного памятника в технике «корка»
Центральный элемент мемориального комплекса — резной памятник из чёрного габбро-диабаза размером 1000 × 1475 мм, установленный на гранитном постаменте. Памятник выполнен в технике «корка»: лицевая сторона зеркально отполирована, а задняя часть и боковые грани сохраняют природный рельеф дикого камня.
В верхней части стелы высечен православный крест. На полированной лицевой поверхности нанесена портретная гравировка высокой детализации — чёрный фон габбро обеспечивает максимальный контраст и чёткость изображения.
В верхней части стелы высечен православный крест. На полированной лицевой поверхности нанесена портретная гравировка высокой детализации — чёрный фон габбро обеспечивает максимальный контраст и чёткость изображения.
Финишные работы
На завершающем этапе выполнена уборка территории. Мемориальный комплекс полностью готов к эксплуатации.
Что получил заказчик
По итогам проекта Д30 запущенный и повреждённый участок у дороги превратился в ухоженный мемориальный комплекс:
Резной памятник из чёрного габбро-диабаза в технике «корка» — полированная лицевая сторона и природный дикий камень сзади.
Портретная гравировка высокой детализации на контрастном чёрном фоне.
Бетонный цоколь, облицованный гранитом, - участок поднят на нужный уровень.
Декоративные столбики с полированными гранитными шарами по углам.
Мощение пилено-колотой гранитной брусчаткой 100 × 100 × 50 мм.
Полная расчистка и благоустройство территории.
Если вы планируете обновление мемориального участка — мы готовы помочь на каждом этапе: от первого разговора о пожеланиях до согласования 3D-модели и финального монтажа.